--   |  设为首页

帮忙装修网

中山

[切换]

56平米学区房装修,一家四口住一点也不挤

来自:中山帮忙装修网 日期:2019-08-22 09:53:20 10442 次 分享到:
导读:
面积不大的小房子,却装下了两个卧室、客厅、书房、餐桌、厨房、玄关、生活阳台,满足了一家四口的所有需求。设计师是如何做到的呢,下面一起来看看吧!

下面中山装修公司帮忙装修网要分享的是一套面积为56平米的小公寓案例,是业主为陪伴家里两个宝贝读书准备的房子。面积不大的小房子,却装下了两个卧室、客厅、书房、餐桌、厨房、玄关、生活阳台,满足了一家四口的所有需求。设计师是如何做到的呢,下面一起来看看吧!

图赏

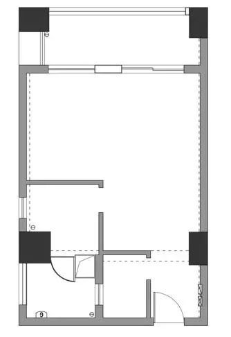
平面户型图

"开放、轻松"是这个小房子的设计理念,为了让空间更通透开阔,设计师直接推翻了公寓的原本格局,整体做了重新规划布局。

| 玄关 |

为让空间看上去更加简洁清爽,将入户大门也换成了白色。入户右侧打造了一整排通顶的鞋柜+储物柜,左侧打造了卡座,兼具换鞋储物功能,洞洞板不仅实用也是不错的装饰。

| 餐厨 |

为了给孩子们营造一个干干净净的空间效果,大面积用了白色纯平的柜体设计。开放的厨房设计是为了在烹饪的时候也能随时照看两个小孩的活动。

橱柜的吊柜设计了两层不同的进深,避免了生活中撞到头的问题,同时还设置了储物与置物的功能分区,将生活方式的便利做到极致。

餐桌椅都是圆角的,防止撞伤,同时为这个小家营造了更舒适自然的氛围。点击这里领取"免费设计"

| 书房 |

紧挨餐厅的另一侧一个小书房,书桌上方安置的隔板既能放置一些小摆件和相框,还能增添生活气息。

|儿童房 |

业主将最好的空间留给了孩子,一是这里只是短期居住,二是为了孩子的睡眠空间能够更加宽敞舒适,父母对孩子的爱总是那么无私。

房门换成了两扇子窄边玻璃门,即保证了光线能完美的传递,又有效的形成一个封闭的小空间。点击这里领取"免费设计"

高低床的使用能为房间留下更大的活动区域,当玻璃滑门背后安装的门帘拉上可以让小朋友晚上有更好的睡眠!

| 客厅&卧室|

餐厅另一侧的前方就是简洁功能的客厅和夫妻俩的卧室,一面长长的大衣柜从餐厅一直延伸到卧室床边。

沙发和榻榻米床组成一个“L”型的休息坐卧区,让休息区和卧室的组合起到了另一种有趣的变化。

橙色皮质两人位沙发,搭配灵活的茶几、有超的落地灯+边几+床头灯,质感设计感样样兼具。空间虽小,却不能以牺牲品质为代价。

拉上隐藏起来的布帘,可以让榻榻米床形成一个封闭的卧室。点击这里领取"免费设计"

| 卫生间 |

重新布局后,实现了卫生间干湿分区的同时,还巧妙的凹出了双台盆的设计,保证夫妻和孩子都可以互不干扰的情况下使用卫生间。


中山装修公司哪家好?中山新房装修要找靠谱的装修公司就上中山帮忙装修网,免费获得三家本地优秀装修公司量房、设计、报价,对比之后再装修。点击免费发布装修招标。

长按二维码关注"帮忙装修网",了解更多装修资讯↓↓↓


或拨打免费热线:13822775923

已成功招标53521